• Главная
  • программа план расстановки мебели

Программа план расстановки мебели

15 января 2024 / 0 комментариев / 9 просмотров

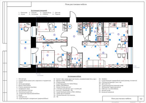
Программа план расстановки мебели - это инструмент, который помогает вам создать оптимальное распределение мебели в помещении. С его помощью вы сможете легко спланировать расстановку мебели в комнате, учитывая размеры, форму помещения и ваши предпочтения.

программа план расстановки мебели
1
программа план расстановки мебели
2
программа план расстановки мебели
3
программа план расстановки мебели
4
программа план расстановки мебели
5
программа план расстановки мебели
6
программа план расстановки мебели
7
программа план расстановки мебели
8
программа план расстановки мебели
9
программа план расстановки мебели
10
программа план расстановки мебели
11
программа план расстановки мебели
12
программа план расстановки мебели
13
программа план расстановки мебели
14
программа план расстановки мебели
15
программа план расстановки мебели
16

Шаг 1: Изучение помещения

Перед тем, как приступить к созданию плана расстановки мебели, необходимо изучить помещение. Измерьте размеры комнаты, обратите внимание на расположение окон, дверей и других особенностей помещения.

программа план расстановки мебели
17
программа план расстановки мебели
18
программа план расстановки мебели
19
программа план расстановки мебели
20
программа план расстановки мебели
21
программа план расстановки мебели
22
программа план расстановки мебели
23
программа план расстановки мебели
24
программа план расстановки мебели
25
программа план расстановки мебели
26
программа план расстановки мебели
27
программа план расстановки мебели
28
программа план расстановки мебели
29
программа план расстановки мебели
30
программа план расстановки мебели
31
программа план расстановки мебели
32
программа план расстановки мебели
33

Шаг 2: Выбор программы

Существует множество программ для создания планов расстановки мебели. Выберите подходящую вам программу, учитывая ее функционал, удобство использования и доступность.

программа план расстановки мебели
34
программа план расстановки мебели
35
программа план расстановки мебели
36
программа план расстановки мебели
37
программа план расстановки мебели
38
программа план расстановки мебели
39
программа план расстановки мебели
40
программа план расстановки мебели
41
программа план расстановки мебели
42
программа план расстановки мебели
43
программа план расстановки мебели
44
программа план расстановки мебели
45
программа план расстановки мебели
46
программа план расстановки мебели
47
программа план расстановки мебели
48
программа план расстановки мебели
49
программа план расстановки мебели
50

Шаг 3: Создание плана

С помощью выбранной программы начните создавать план расстановки мебели. Добавляйте мебельные элементы, перемещайте их, тестируйте различные варианты расположения.

программа план расстановки мебели
51
программа план расстановки мебели
52
программа план расстановки мебели
53
программа план расстановки мебели
54
программа план расстановки мебели
55
программа план расстановки мебели
56
программа план расстановки мебели
57
программа план расстановки мебели
58
программа план расстановки мебели
59
программа план расстановки мебели
60
программа план расстановки мебели
61
программа план расстановки мебели
62
программа план расстановки мебели
63
программа план расстановки мебели
64
программа план расстановки мебели
65
программа план расстановки мебели
66

Шаг 4: Оценка вариантов

После того, как вы создали несколько вариантов плана расстановки мебели, оцените их. Учитывайте удобство использования помещения, световые условия, гармонию интерьера.

программа план расстановки мебели
67
программа план расстановки мебели
68
программа план расстановки мебели
69
программа план расстановки мебели
70
программа план расстановки мебели
71
программа план расстановки мебели
72
программа план расстановки мебели
73
программа план расстановки мебели
74
программа план расстановки мебели
75
программа план расстановки мебели
76
программа план расстановки мебели
77
программа план расстановки мебели
78
программа план расстановки мебели
79
программа план расстановки мебели
80
программа план расстановки мебели
81
программа план расстановки мебели
82

Шаг 5: Фотографии и иллюстрации

В статье представлены многочисленные фотографии и иллюстрации, демонстрирующие примеры планов расстановки мебели, которые могут послужить вдохновением для вас.

Оставьте комментарий

Ваш электронный адрес не будет опубликован.