• Главная
  • инструкция по монтажу духового шкафа

Инструкция по монтажу духового шкафа

15 января 2024 / 0 комментариев / 12 просмотров

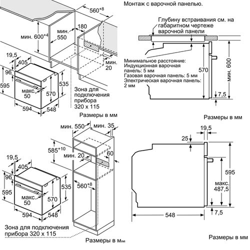
Монтаж духового шкафа - ответственный этап при обустройстве кухни. В данной статье мы подробно опишем каждый этап установки духовки с использованием большого количества фотографий, чтобы вы могли выполнить эту задачу легко и без лишних проблем.

инструкция по монтажу духового шкафа
1
инструкция по монтажу духового шкафа
2
инструкция по монтажу духового шкафа
3
инструкция по монтажу духового шкафа
4
инструкция по монтажу духового шкафа
5
инструкция по монтажу духового шкафа
6
инструкция по монтажу духового шкафа
7
инструкция по монтажу духового шкафа
8
инструкция по монтажу духового шкафа
9
инструкция по монтажу духового шкафа
10
инструкция по монтажу духового шкафа
11
инструкция по монтажу духового шкафа
12
инструкция по монтажу духового шкафа
13
инструкция по монтажу духового шкафа
14
инструкция по монтажу духового шкафа
15
инструкция по монтажу духового шкафа
16
инструкция по монтажу духового шкафа
17
инструкция по монтажу духового шкафа
18
инструкция по монтажу духового шкафа
19
инструкция по монтажу духового шкафа
20
инструкция по монтажу духового шкафа
21
инструкция по монтажу духового шкафа
22
инструкция по монтажу духового шкафа
23
инструкция по монтажу духового шкафа
24
инструкция по монтажу духового шкафа
25
инструкция по монтажу духового шкафа
26
инструкция по монтажу духового шкафа
27
инструкция по монтажу духового шкафа
28
инструкция по монтажу духового шкафа
29
инструкция по монтажу духового шкафа
30
инструкция по монтажу духового шкафа
31
инструкция по монтажу духового шкафа
32
инструкция по монтажу духового шкафа
33
инструкция по монтажу духового шкафа
34
инструкция по монтажу духового шкафа
35
инструкция по монтажу духового шкафа
36
инструкция по монтажу духового шкафа
37
инструкция по монтажу духового шкафа
38
инструкция по монтажу духового шкафа
39
инструкция по монтажу духового шкафа
40
инструкция по монтажу духового шкафа
41
инструкция по монтажу духового шкафа
42
инструкция по монтажу духового шкафа
43
инструкция по монтажу духового шкафа
44
инструкция по монтажу духового шкафа
45
инструкция по монтажу духового шкафа
46
инструкция по монтажу духового шкафа
47
инструкция по монтажу духового шкафа
48
инструкция по монтажу духового шкафа
49
инструкция по монтажу духового шкафа
50
инструкция по монтажу духового шкафа
51
инструкция по монтажу духового шкафа
52
инструкция по монтажу духового шкафа
53
инструкция по монтажу духового шкафа
54
инструкция по монтажу духового шкафа
55
инструкция по монтажу духового шкафа
56
инструкция по монтажу духового шкафа
57
инструкция по монтажу духового шкафа
58
инструкция по монтажу духового шкафа
59
инструкция по монтажу духового шкафа
60
инструкция по монтажу духового шкафа
61
инструкция по монтажу духового шкафа
62
инструкция по монтажу духового шкафа
63
инструкция по монтажу духового шкафа
64
инструкция по монтажу духового шкафа
65
инструкция по монтажу духового шкафа
66
инструкция по монтажу духового шкафа
67
инструкция по монтажу духового шкафа
68
инструкция по монтажу духового шкафа
69
инструкция по монтажу духового шкафа
70
инструкция по монтажу духового шкафа
71
инструкция по монтажу духового шкафа
72
инструкция по монтажу духового шкафа
73
инструкция по монтажу духового шкафа
74
инструкция по монтажу духового шкафа
75
инструкция по монтажу духового шкафа
76
инструкция по монтажу духового шкафа
77
инструкция по монтажу духового шкафа
78
инструкция по монтажу духового шкафа
79
инструкция по монтажу духового шкафа
80
инструкция по монтажу духового шкафа
81
инструкция по монтажу духового шкафа
82
инструкция по монтажу духового шкафа
83
инструкция по монтажу духового шкафа
84
инструкция по монтажу духового шкафа
85
инструкция по монтажу духового шкафа
86

Шаг 1: Подготовка к монтажу

Перед началом установки духового шкафа необходимо правильно подготовиться. В этом разделе мы рассмотрим необходимые инструменты и материалы, а также подготовительные работы перед установкой.

Оставьте комментарий

Ваш электронный адрес не будет опубликован.